...in 5 Minuten zu Fuß zur Innenstadt und nur 2 Nachbarn im Haus.

Objekt: 1046
Objekttyp Dachgeschoss-Wohnung
Nutzungsart Wohnen
Ort Grevenbroich-Stadtmitte
Wohnfläche ca. 114 m²
Anzahl Zimmer 4
Anzahl Badezimmer 1
Balkon Ja
Fahrstuhl kein Fahrstuhl
Baujahr 1980
verfügbar ab nach Vereinbarung
Stellplatzart Stellplatz im Freien
Das geräumige Badezimmer ist mit einem großen Fenster, Badewanne und Dusche sowie zwei Waschbecken ausgestattet.

Vom Balkon aus haben Sie einen schönen Blick in den Garten.

Jede Wohnung verfügt über einen eigenen Kellerraum. Außerdem ist ein gemeinsamer Wasch- und Trockenraum vorhanden.

 

- großzügige Dachgeschoß-Wohnung mit kleinem Balkon
- nur 2 weitere Nachbarn im Haus
- Einbauküche inklusive
- Fußbodenheizung
- modernes Badezimmer mit Badewanne, Dusche,
2 Waschbecken und sepperatem WC
- Gäste-WC
- PKW-Stellplatz direkt am Haus
Diese Dachgeschosswohnung befindet sich in zentraler Lage von Grevenbroich-Stadtmitte.
Nur wenige Meter Fußweg und Sie erreichen die Fußgängerzone mit allen Geschäften und zwei Einkaufsgalerien.
Auch das Naherholungsgebiet ist nur ein paar Schritte entfernt.

Ebenso liegen Restaurants, Freizeiteinrichtungen, Banken und Ärzte in kürzester Entfernung.

Die umliegenden Großstädte Düsseldorf, Köln, MG, Aachen und das Ruhrgebiet sind über die hervorragende Autobahn- (A 46, 44, 57, 61) und Nahverkehrsanbindung schnell zu erreichen.
Ein ausführliches Exposé mit weiteren Innenaufnahmen senden wir Ihnen gerne zu.
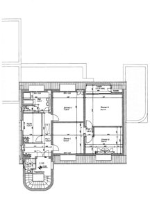
  • Grundriss DG

Sofort-Kontakt

Ich wünsche ...

* Pflichtfelder

Objekt: 1046 Weiterempfehlen

*Pflichtfelder

3D RUNDGANG

Diese Objekte könnten Sie auch interessieren:

Dachgeschoss-Wohnung

modern - lichtdurchflutet - energiesparend

Ort Grevenbroich / Noithausen
Wohnfläche ca. 83 m²
Anzahl Zimmer 3
Kaltmiete 730 €
 Details